Не упусти свой шанс! Последние акции от застройщиков  ▼

Продается 1-комнатная квартира, Земская ул., 13

4 700 000 Р

Чехов г. (Чехов гор. округ)

Земская ул.13

Дата публикации: 27 июля 2021

Дата обновления: 16 декабря 2025

Телефон: 
Показать телефон

+7 (916) 710-18-95

Название: ЖК "Губернский"

От застройщика: 0 квартир в продаже

Этаж: 6 / 16

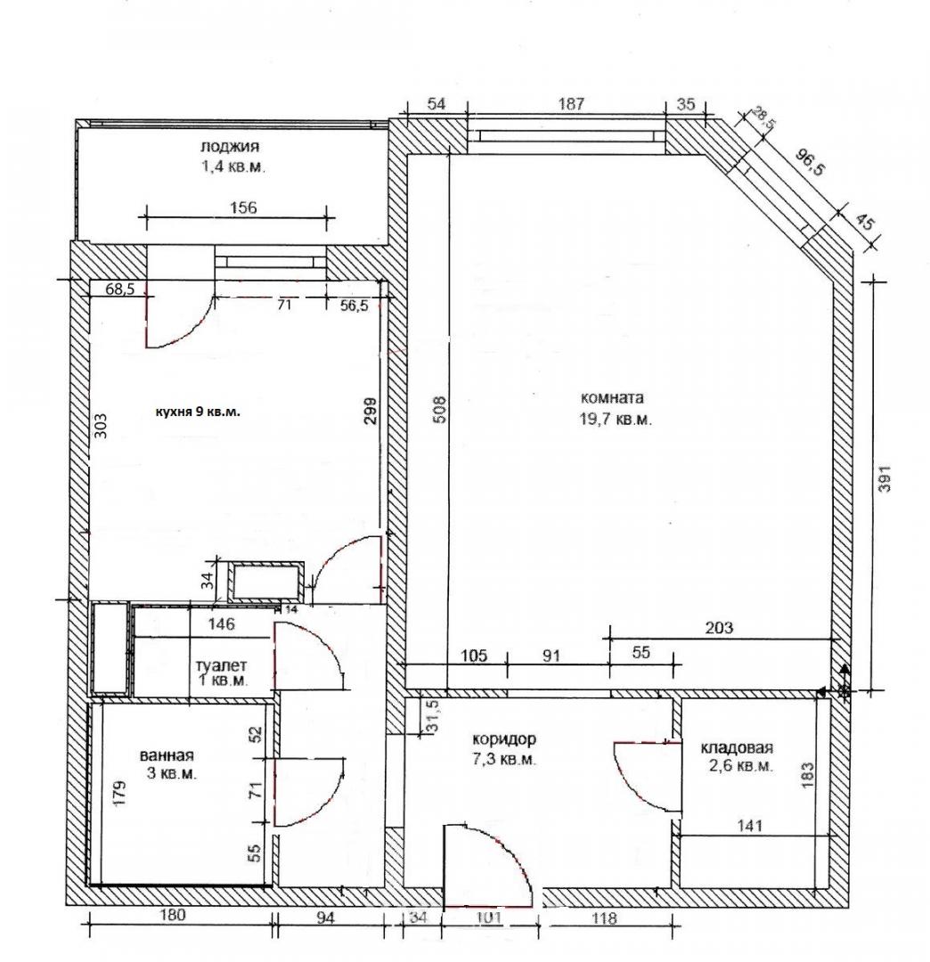
Общая: 42,1 м2

Жилая: 19,7 м2

Кухня: 9 м2

Комнаты: 19,7 м2

Балкон/лоджия: лоджия

Лифт: лифт пассажирский и лифт грузовой

Окна: окна во двор

Санузел: раздельный

Мусоропровод: не указано

Состояние квартиры: отличное состояние

Тип дома: панельный

Год постройки: 2008

Территория: не огорожена

Парковка: есть

Статус сделки: продажа

Сделка: прямая продажа

Собственность: Более 12 лет

Основание права собственности: наследство

Описание

Продается 1-комнатная квартира в г. Чехов, мкр. "Губернский", ул. Земская д. 13, с отличным ремонтом. Площадь 42,1/19,7/9 кв.м, металлическая входная дверь, переклеены обои, поменяны двери, большая прихожая, гардеробная, застекленная лоджия, на полу ламинат, установлены счетчики воды. При продаже остается кухонный гарнитур и вся мебель. Подъезд чистый, ухоженный. Во дворе дома детский сад, детская площадка, школа в 5 мин. Ходьбы. Район с развитой инфраструктурой: в пешей доступности новая школа, два детских сада (один с бассейном), магазины, аптеки, детская и взрослая поликлиники, банки, строительный и овощной рынки, ТЦ "Карусель", рядом лесопарковая зона для прогулок и барбекю. До остановки общественного транспорта 5 мин. пешком, до ж/д и автовокзала 15 мин. на транспорте, до ж/д ст.Чепелево 15 мин. пешком, до метро Аннино 40 мин. на автобусе. Прямая продажа, один взрослый собственник, никто не прописан.

Квартира на карте

ПанорамыКарта
Спецпредложения
Добавить объявление